新築一戸建て 桶川市上日出谷南1丁目
所在地
桶川市上日出谷南1丁目
3,480万円
22.22坪
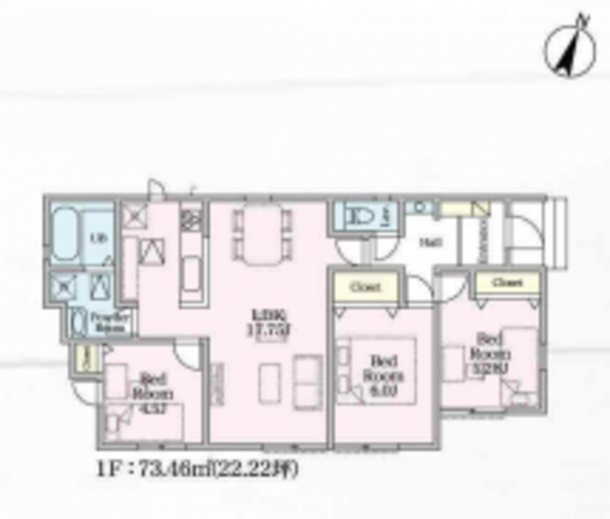
3LDK
・セブンイレブン桶川上日出谷店 徒歩約5分(約400m)
・ヤオコー桶川上日出谷店 徒歩約6分(約400m)
・ベニバナウォーク桶川 徒歩約15分(約1000m)
・ 徒歩約分(約m)
・ 徒歩約分(約m)
物件概要
- 交通
-
高崎線 桶川駅 バス停上日出谷原公園東 まで 徒歩2分
- 接道状況
-
南西側 公道19.5m 間口約9.6m
東側 公道4.1m 間口約9m - 土地面積
- 実測 140.03㎡ (42.35坪)
- 建物面積
- 73.46㎡ (22.22坪)
- 築年数
- 建ぺい率
- 60%
- 容積率
- 200%
- 土地権利
- 所有権
- 構造および階数
- 木造 地上1階建
- 小学校区
- 桶川西 ( 450m )
- 中学校区
- 桶川 ( 1400m )
- 私道負担
- 地目
- 宅地
- 現況
- 空
- 引渡時期
- 期日指定
- 駐車場
- 有
- 上水道
- 下水道
- ガス
- 都市計画
- 市街化区域
- 用途地域
- 1種住居
- 設備・条件
- 備考
- 取引態様
- 仲介

