中古一戸建て 桶川市大字川田谷
所在地
桶川市大字川田谷
1,200万円
25.79坪
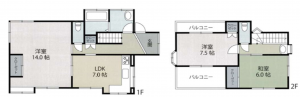
3LDK
人気の角地で広々の約68坪あります
・ヤオコー桶川上日出谷店 徒歩約42分(約3300m)
・セブンイレブン北本石戸宿1丁目店 徒歩約22分(約1700m)
物件概要
- 交通
-
高崎線 桶川駅 バス26分乗車 バス停柏原 まで 徒歩17分
- 接道状況
-
西側 公道6m
北側 公道6.2m - 土地面積
- 227.22㎡ (68.73坪)
- 建物面積
- 85.28㎡ (25.79坪)
- 築年数
-
1985年
(昭和60)
4月
築40年 - 建ぺい率
- 60%
- 容積率
- 200%
- 土地権利
- 所有権
- 構造および階数
- 木造 地上2階建
- 小学校区
- 川田谷 ( 1600m )
- 中学校区
- 桶川西 ( 2300m )
- 私道負担
- 地目
- 宅地
- 現況
- 空
- 引渡時期
- 相談
- 駐車場
- 有
- 上水道
- 下水道
- ガス
- 都市計画
- 市街化調整区域
- 用途地域
- 設備・条件
- 備考
- 取引態様
- 仲介

