新築一戸建て 桶川市泉1丁目3期1棟
所在地
桶川市泉1丁目3期1棟
4,498万円
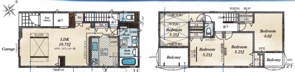
31.24坪
3LDK
・桶川幼稚園 徒歩約17分(約1300m)
・カオルキッズランド保育園 徒歩約8分(約600m)
・おけがわマイン 徒歩約11分(約850m)
・ウエルシア桶川泉店 徒歩約5分(約400m)
・セブンイレブン桶川泉1丁目店 徒歩約6分(約460m)
・いのうえ歯科クリニック 徒歩約4分(約250m)
物件概要
- 交通
-
湘南新宿高 桶川駅 バス1分乗車 バス停桶川市役所前 まで 徒歩3分
- 接道状況
- 土地面積
- 113.95㎡ (34.46坪)
- 建物面積
- 103.29㎡ (31.24坪)
- 築年数
- 2026年 (令和8) 1月
- 建ぺい率
- 60%
- 容積率
- 200%
- 土地権利
- 所有権
- 構造および階数
- 木造 地上2階建
- 小学校区
- 桶川 ( 330m )
- 中学校区
- 桶川 ( 170m )
- 私道負担
- 地目
- 宅地
- 現況
- 引渡時期
- 相談
- 駐車場
- 上水道
- 下水道
- ガス
- 都市計画
- 市街化区域
- 用途地域
- 1種住居
- 設備・条件
- 備考
- 取引態様
- 仲介

