中古一戸建て 桶川市鴨川1丁目
所在地
桶川市鴨川1丁目
500万円
22.53坪
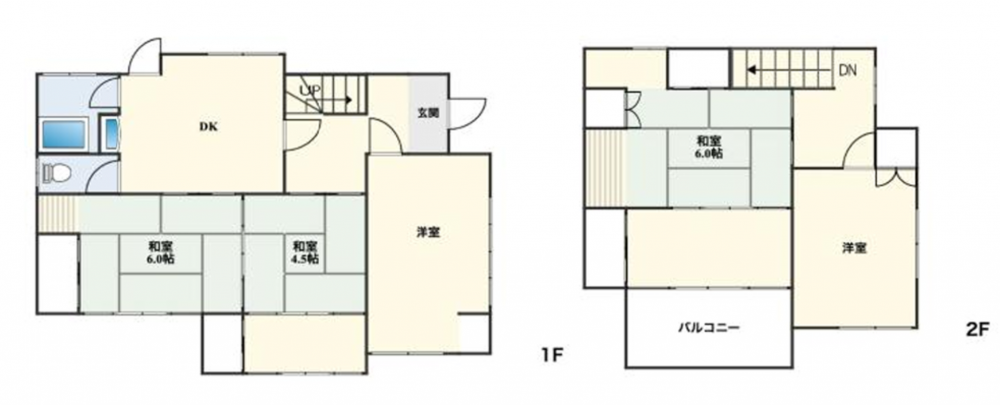
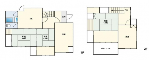
6DK
駅徒歩圏内の好立地かつ、閑静な住宅街です。投資目的にもお勧め
・ほっともっと桶川鴨川店 徒歩約2分(約170m)
・ドラッグセイムス上尾井戸木店 徒歩約11分(約750m)
・マルエツ上尾井戸木店 徒歩約11分(約800m)
物件概要
- 交通
-
高崎線 桶川駅 バス2分乗車 バス停鴨川公園入口 まで 徒歩4分
- 接道状況
- 東側 私道3.1m
- 土地面積
- 公簿 119.00㎡ (35.99坪)
- 建物面積
- 74.51㎡ (22.53坪)
- 築年数
-
1970年
(昭和45)
11月
築55年 - 建ぺい率
- 60%
- 容積率
- 200%
- 土地権利
- 所有権
- 構造および階数
- 木造 地上2階建
- 小学校区
- 桶川西 ( 1400m )
- 中学校区
- 桶川 ( 850m )
- 私道負担
- 無
- 地目
- 畑
- 現況
- 空
- 引渡時期
- 相談
- 駐車場
- 無
- 上水道
- 下水道
- ガス
- 都市計画
- 市街化区域
- 用途地域
- 1種中高
- 設備・条件
- 備考
- 取引態様
- 仲介

