新築一戸建て 桶川市大字下日出谷
所在地
桶川市大字下日出谷
4,280万円
30.93坪
4LDK
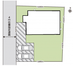
71坪と広い敷地です。間口も広く車の出入りも楽ちん!
学校も近く子育てにピッタリです
・ヤオコー桶川上日出谷店 徒歩約12分(約950m)
・ファミリーマート桶川下日出谷店 徒歩約6分(約450m)
・鴨川保育園 徒歩約11分(約868m)
・桶川パンダ幼稚園 徒歩約9分(約696m)
物件概要
- 交通
-
高崎線 桶川駅 まで 徒歩8分
- 接道状況
- 西側 私道4m
- 土地面積
- 236.01㎡ (71.39坪)
- 建物面積
- 102.26㎡ (30.93坪)
- 築年数
- 2026年 (令和8) 5月
- 建ぺい率
- 50%
- 容積率
- 100%
- 土地権利
- 所有権
- 構造および階数
- 木造 地上2階建
- 小学校区
- 桶川西 ( 78m )
- 中学校区
- 桶川西 ( 1760m )
- 私道負担
- 地目
- 山林
- 現況
- 引渡時期
- 相談
- 駐車場
- 有
- 上水道
- 下水道
- ガス
- 都市計画
- 市街化区域
- 用途地域
- 1種低層
- 設備・条件
- 備考
- 取引態様
- 仲介

