新築一戸建て 北本市宮内1丁目L号棟
所在地
北本市宮内1丁目L号棟
3,490万円
29.55坪
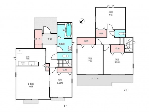
4LDK
閑静な住宅街でありながら国道17号へのアクセスも楽々♪
・認定こども園ふじ幼稚園 徒歩約8分(約600m)
・きたもと幼稚園 徒歩約13分(約850m)
・セブンイレブン北本東間2丁目店 徒歩約6分(約450m)
物件概要
- 交通
-
高崎線 北本駅 まで 徒歩12分
- 接道状況
- 土地面積
- 122.53㎡ (37.06坪)
- 建物面積
- 97.71㎡ (29.55坪)
- 築年数
- 2026年 (令和8) 2月
- 建ぺい率
- 50%
- 容積率
- 100%
- 土地権利
- 所有権
- 構造および階数
- 木造 地上2階建
- 小学校区
- 中丸 ( 780m )
- 中学校区
- 宮内 ( 1400m )
- 私道負担
- 地目
- 宅地
- 現況
- 引渡時期
- 相談
- 駐車場
- 上水道
- 下水道
- ガス
- 都市計画
- 市街化区域
- 用途地域
- 1種低層
- 設備・条件
- 備考
- 取引態様
- 仲介

