新築一戸建て 桶川市寿2丁目2号棟
所在地
桶川市寿2丁目2号棟
3,880万円
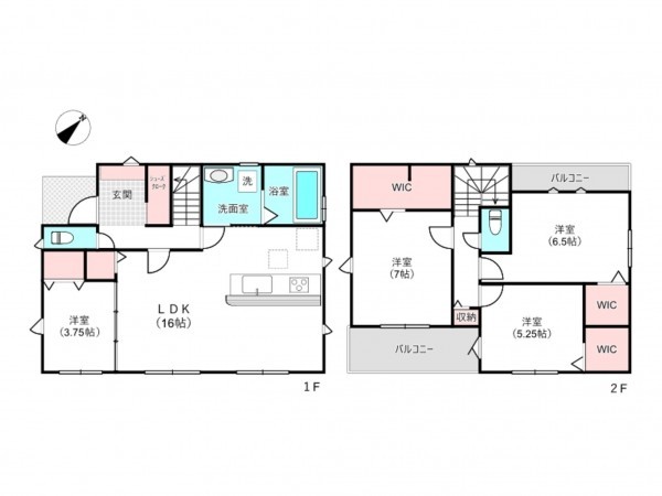
29.61坪
4LDK
小学校まで徒歩9分お子様の通学安心です♪
・北保育所 徒歩約7分(約500m)
・桶川幼稚園 徒歩約7分(約500m)
・セブンイレブン 徒歩約4分(約300m)
・ドラッグストアセキ 徒歩約6分(約450m)
・ヨークマート 徒歩約9分(約650m)
・マメトラショッピングパーク 徒歩約13分(約1000m)
物件概要
- 交通
-
高崎線 桶川駅 まで 徒歩11分
- 接道状況
- 土地面積
- 125.90㎡ (38.08坪)
- 建物面積
- 97.91㎡ (29.61坪)
- 築年数
- 2026年 (令和8) 7月
- 建ぺい率
- 60%
- 容積率
- 200%
- 土地権利
- 所有権
- 構造および階数
- 木造 地上2階建
- 小学校区
- 桶川 ( 650m )
- 中学校区
- 桶川東 ( 1000m )
- 私道負担
- 地目
- 宅地
- 現況
- 引渡時期
- 相談
- 駐車場
- 上水道
- 下水道
- ガス
- 都市計画
- 市街化区域
- 用途地域
- 1種住居
- 設備・条件
- 備考
- 取引態様
- 仲介

