新築一戸建て 北本市中丸7丁目全1棟1期1号棟
所在地
北本市中丸7丁目全1棟1期1号棟
3,698万円
32.43坪
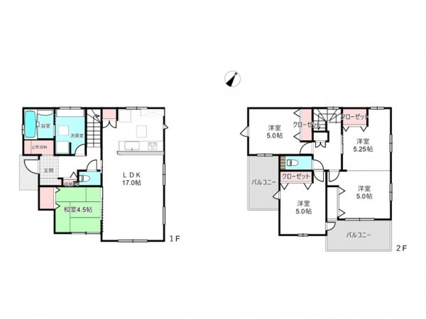
4LDK
南西角地で陽当たり良好♪
前面道路広いので3台駐車もゆったり余裕です
・北本東スマイルこども園 徒歩約7分(約500m)
・ロヂャース北本店 徒歩約5分(約400m)
・ファミリーマート北本中丸店 徒歩約8分(約560m)
・クスリのアオキ二ツ家店 徒歩約9分(約650m)
・さとうクリニック 徒歩約11分(約840m)
物件概要
- 交通
-
高崎線 桶川駅 まで 徒歩35分
- 接道状況
- 土地面積
- 143.23㎡ (43.32坪)
- 建物面積
- 107.23㎡ (32.43坪)
- 築年数
- 2026年 (令和8) 7月
- 建ぺい率
- 50%
- 容積率
- 80%
- 土地権利
- 所有権
- 構造および階数
- 木造 地上2階建
- 小学校区
- 東 ( 1200m )
- 中学校区
- 東 ( 2500m )
- 私道負担
- 地目
- 宅地
- 現況
- 引渡時期
- 期日指定
- 駐車場
- 有
- 上水道
- 下水道
- ガス
- 都市計画
- 市街化区域
- 用途地域
- 1種低層
- 設備・条件
- 備考
- 取引態様
- 仲介

