中古一戸建て 桶川市上日出谷南3丁目
所在地
桶川市上日出谷南3丁目
2,560万円
40.25坪
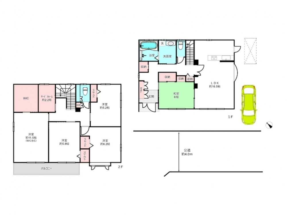
5SLDK
令和8年3月全居室クロスリフォーム済♪
南西側公道に面しているので陽当たり良好♪
リビングは床暖房で冬はぽかぽか
・ヤオコー桶川上日出谷店 徒歩約4分(約250m)
・セブンイレブン桶川上日出谷店 徒歩約7分(約500m)
物件概要
- 交通
-
高崎線 桶川駅 バス4分乗車 まで 徒歩28分
- 接道状況
- 南西側 公道4m 間口約13m
- 土地面積
- 公簿 133.35㎡ (40.33坪)
- 建物面積
- 133.09㎡ (40.25坪)
- 築年数
-
2001年
(平成13)
3月
築25年 - 建ぺい率
- 60%
- 容積率
- 200%
- 土地権利
- 所有権
- 構造および階数
- 軽量鉄骨造 地上2階建
- 小学校区
- 日出谷 ( 50m )
- 中学校区
- 桶川西 ( 970m )
- 私道負担
- 地目
- 宅地
- 現況
- 空
- 引渡時期
- 相談
- 駐車場
- 有
- 上水道
- 下水道
- ガス
- 都市計画
- 市街化区域
- 用途地域
- 1種住居
- 設備・条件
- 備考
- 取引態様
- 仲介

